BACK TO RESIDENTIAL PROJECTS

QUARRY APARTMENTS - WADEBRIDGE

PROJECTS

PEOPLE

EXPERTISE

AWARDS / FEATURES

BLOG

PHILOSOPHY

DESIGN PROCESS

HELPFUL ADVICE

LINKS

CONTACT US

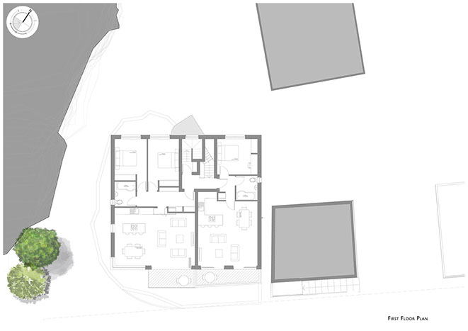
Five apartments in Wadebridge - North Cornwall - Planning approval gained

 

The scheme for 5 apartments resolves a complex set of issues. The derelict quarry site, with its angled slate

faces, inspired our design forms and choice of materials, to provide a positive contribution to Wadebridge, the much-loved home of our practice.

 

The West and North edges of the site are bounded by the rough - hewn-slate face of the disused quarry reaching over 30 metres in height, giving a unique sense of materiality in which to place a building. The design proposal responds to this context with a base of local slate stone walling.

 

The layout of the scheme has been inspired by the layers of level of the quarry and by a metaphor of classical hierarchy. This base will be tiered to form a podium ground floor, with slate walls angled to reflect the face of the quarry faces. The upper floors of the proposal will have a simpler 90 degree geometry, with timber-effect boarded cladding. The butterfly shaped zinc roof of the top apartment folds down to form its eastern elevation, adding visual interest to the side elevation viewed from town.

 

All five apartments face south-east, enjoying morning sun and the most advantageous orientation for solar gain. All flats enjoy far-reaching views over the Polmorla Valley, the second-floor apartment also facing south-west to view over the slate quarry edge to lovely water meadows.

 

Contact                         Office 5-6 Hamilton House, The Platt, Wadebridge, Cornwall, PL27 7AD                   Tel: 01208 813 131          Mob: 07976 740 155